Sie befinden sich auf der Seite: /architekten-koeln/76/haus-mobile von maier-architekten-koeln.de.
Navigation überspringen
Wohnen
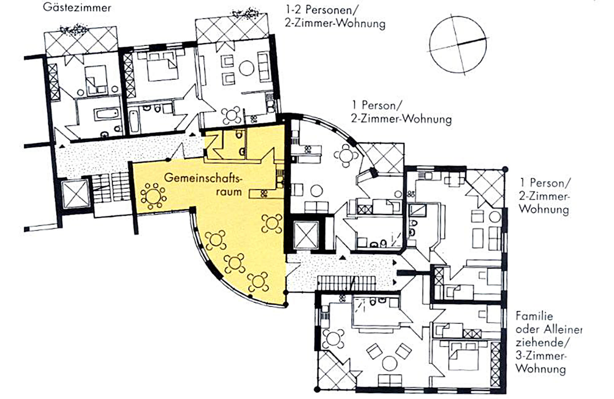
35 WE 36 – 144 m² / 31 barrierefreie 2-4-Zimmerwohnungen / 4 Haus in Haus-Maisonettewohnungen / Gemeinschaftsraum / Stadtteilcafe / Tiefgarage
Home Projekte Wohnen Haus Mobile