Sie befinden sich auf der Seite: /architekten-koeln/58/jugendhaus-henrys-hope von maier-architekten-koeln.de.
Navigation überspringen
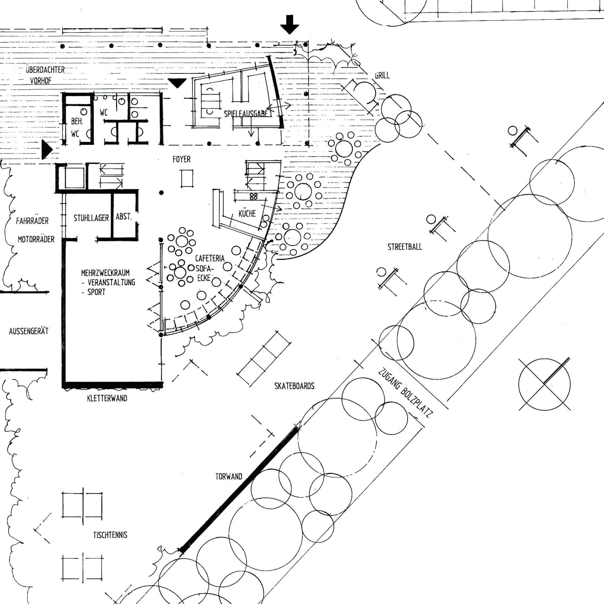
Jugend
Home Projekte Jugend Jugendhaus Henry's Hope